项目类型:装配式栈道
项目地点:沙特阿拉伯
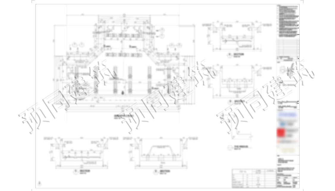
项目简介:本项目为沙特阿拉伯某旅游度假区三个相互关联的建筑群之间的联络栈道,栈道为装配式U型桥梁。
服务内容:方案设计、图纸设计、模具设计、生产方案、温控措施、场地改造方案、运输方案、吊装方案等。
项目说明:本项目涉及桥梁总计千余片,经过我司专业的装配式预制构件方案设计及标准化定型,最终仅有截面类七种,构件型号不到百种,就涵盖了所有桥梁构件。经预同建筑全过程技术咨询,各参与方一年多的共同努力,本项目已经顺利交付,并得到了一致好评。
Project Type: Prefabricated Stackway
Project location: Saudi Arabia
Project Description: This project is a connecting boardwalk between three interrelated building clusters in a tourist resort in Saudi Arabia. The boardwalk is a prefabricated U-shaped bridge.
Service content: scheme design, drawing design, mold design, production plan, temperature control measures, site renovation plan, transportation plan, lifting plan, etc.
Project Description: This project involves a total of over a thousand bridges. After our company's professional design and standardization of prefabricated component schemes, there are only seven types of cross sections, and less than a hundred types of component models, covering all bridge components. Through technical consultation throughout the entire construction process and the joint efforts of all parties for over a year, this project has been successfully delivered and received unanimous praise.
装配式全产业链技术服务,请认准“北京预同”
公司网址:www.ytjzjs.com
公众号:ytjzjs
